Pop singer Ed Sheeran is getting a leg up on most 32-year-olds by building a chapel, which includes a crypt, at his 16-acre estate in Framlingham, England, known as “Sheeranville” by residents.
Local authorities have approved his application to build the chapel that would be used to celebrate key events, such as christenings, social gatherings and marriages. It also appears that the chapel will be used to celebrate Sheeran’s passing when it occurs.
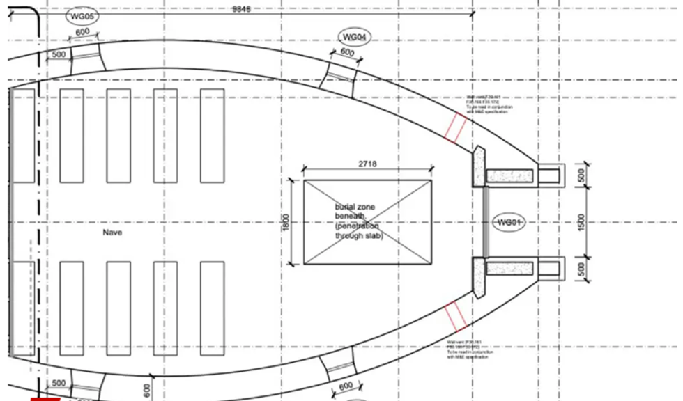
The chapel has a 9-foot by 6-foot crypt accessible by a stone slab. It’s believed that the crypt is large enough to fit two people. “It’s a hole that’s dug in the ground with a bit of stone over it, so whenever the day comes and I pass away, I get to go in there,” Sheeran told GQ. “People think it’s really weird and really morbid, but I’ve had friends die without wills, and no one knows what to do.”
The decision to build a final resting place at such a young age comes after the “Perfect” singer’s recent brush with serious heartbreak. His wife, Cherry Seaborn, was diagnosed with a tumor in 2022, and his friend Jamal Edwards died the same year.
Ed Sheeran dug his own grave in his backyard: ‘I get to go in there’ https://t.co/UeZNgyQuhX
The good news is that Seaborn is doing well after having the tumor removed, but the health scare significantly impacted the couple’s relationship and gave them a real reason to contemplate their mortality.
“I got diagnosed with cancer at the start of the year, which was a massive s—ter,” Seaborn said, according to People. “It made me massively reflect on our mortality. I would never agree to do anything like this, but it made me think, ‘Oh, if I died, what’s people’s perception of me? What do you leave behind?'”
“For Ed, the whole point is he wants to say to people, ‘I’m not just this music machine. I’m not just this robot that tries to get No. 1. I’m a father, I’m a son, I’m a friend.’ It wasn’t until this year when I was like, ‘I might die,'” Seaborn added.

While it may seem a bit morbid for a man that young to be building his own grave, research shows that contemplating your mortality actually makes you happier. Licensed clinical social worker Sean Grover explained that there are 5 benefits to thinking about death in Psychology Today. He says that people contemplating their own death are “more likely to” let go of resentments, live with more gratitude, abandon petty concerns, refresh personal dreams and strengthen their bonds with loved ones.
It seems that contemplating our deaths is a great way to put things in perspective and prioritize the things that matter in life. As Buddhist philosopher Daisaku Ikeda once said, “An awareness and understanding of death raises our state of life. When we are cognizant of the reality and inevitability of death we…become determined to make the most valuable use of each moment of life.”
So, for Sheeran, who lives the privileged life of a mega pop star, building his own crypt was a great way to remain grounded.
While it may seem a bit morbid for a man that young to be building his own grave, research shows that contemplating your mortality actually makes you happier. Licensed clinical social worker Sean Grover explained that there are 5 benefits to thinking about death in Psychology Today. He says that people contemplating their own death are “more likely to” let go of resentments, live with more gratitude, abandon petty concerns, refresh personal dreams and strengthen their bonds with loved ones.
It seems that contemplating our deaths is a great way to put things in perspective and prioritize the things that matter in life. As Buddhist philosopher Daisaku Ikeda once said, “An awareness and understanding of death raises our state of life. When we are cognizant of the reality and inevitability of death we…become determined to make the most valuable use of each moment of life.”
So, for Sheeran, who lives the privileged life of a mega pop star, building his own crypt was a great way to remain grounded.